Точечные светильники

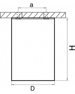
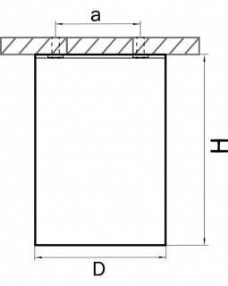
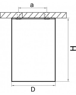
Накладной светильник Lightstar 212617
Накладной светильник Lightstar 212617-foto2
Лидер

Накладной светильник Lightstar 212617

7791.00 р.

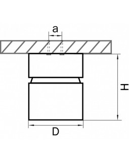
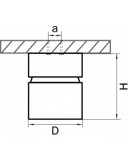
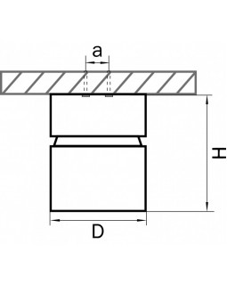
Накладной светильник Lightstar 212619
Накладной светильник Lightstar 212619-foto2
Лидер

Накладной светильник Lightstar 212619

980.00 р.

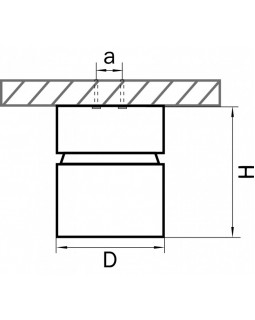
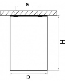
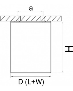
Накладной светильник Lightstar 212626
Накладной светильник Lightstar 212626-foto2
Накладной светильник Lightstar 212626-foto3
Лидер

Накладной светильник Lightstar 212626

12095.00 р.

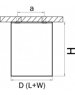
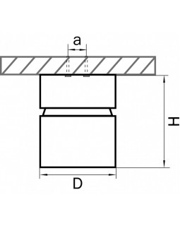
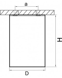
Накладной светильник Lightstar 212627
Накладной светильник Lightstar 212627-foto2
Лидер

Накладной светильник Lightstar 212627

12095.00 р.

Накладной светильник Lightstar 212629
Накладной светильник Lightstar 212629-foto2
Накладной светильник Lightstar 212629-foto3
Накладной светильник Lightstar 212629-foto4
Лидер

Накладной светильник Lightstar 212629

980.00 р.

Накладной светильник Lightstar 212636
Накладной светильник Lightstar 212636-foto2
Лидер

Накладной светильник Lightstar 212636

5697.00 р.

Накладной светильник Lightstar 212637
Накладной светильник Lightstar 212637-foto2
Накладной светильник Lightstar 212637-foto3
Накладной светильник Lightstar 212637-foto4
Лидер

Накладной светильник Lightstar 212637

1479.00 р.

Накладной светильник Lightstar 212639
Накладной светильник Lightstar 212639-foto2
Накладной светильник Lightstar 212639-foto3
Накладной светильник Lightstar 212639-foto4
Лидер

Накладной светильник Lightstar 212639

980.00 р.

Накладной светильник Lightstar 213486
Накладной светильник Lightstar 213486-foto2
Лидер

Накладной светильник Lightstar 213486

1175.00 р.

Накладной светильник Lightstar 213487
Накладной светильник Lightstar 213487-foto2
Лидер

Накладной светильник Lightstar 213487

1175.00 р.

Накладной светильник Lightstar 213490
Накладной светильник Lightstar 213490-foto2
Лидер

Накладной светильник Lightstar 213490

1252.00 р.

Накладной светильник Lightstar 213830
Накладной светильник Lightstar 213830-foto2
Накладной светильник Lightstar 213830-foto3
Накладной светильник Lightstar 213830-foto4
Накладной светильник Lightstar 213830-foto5
Лидер

Накладной светильник Lightstar 213830

8616.00 р.

Накладной светильник Lightstar 213837
Накладной светильник Lightstar 213837-foto2
Накладной светильник Lightstar 213837-foto3
Накладной светильник Lightstar 213837-foto4
Накладной светильник Lightstar 213837-foto5
Лидер

Накладной светильник Lightstar 213837

8616.00 р.

Накладной светильник Lightstar 213839
Накладной светильник Lightstar 213839-foto2
Накладной светильник Lightstar 213839-foto3
Накладной светильник Lightstar 213839-foto4
Накладной светильник Lightstar 213839-foto5
Лидер

Накладной светильник Lightstar 213839

1479.00 р.

Накладной светильник Lightstar 213850
Накладной светильник Lightstar 213850-foto2
Накладной светильник Lightstar 213850-foto3
Накладной светильник Lightstar 213850-foto4
Лидер

Накладной светильник Lightstar 213850

10014.00 р.

Накладной светильник Lightstar 213857
Накладной светильник Lightstar 213857-foto2
Накладной светильник Lightstar 213857-foto3
Накладной светильник Lightstar 213857-foto4
Лидер

Накладной светильник Lightstar 213857

10019.00 р.

Накладной светильник Lightstar 213859
Накладной светильник Lightstar 213859-foto2
Накладной светильник Lightstar 213859-foto3
Накладной светильник Lightstar 213859-foto4
Лидер

Накладной светильник Lightstar 213859

1479.00 р.

Накладной светильник Lightstar 213921
Накладной светильник Lightstar 213921-foto2
Накладной светильник Lightstar 213921-foto3
Накладной светильник Lightstar 213921-foto4
Лидер

Накладной светильник Lightstar 213921

4053.00 р.

Накладной светильник Lightstar 213924
Накладной светильник Lightstar 213924-foto2
Накладной светильник Lightstar 213924-foto3
Накладной светильник Lightstar 213924-foto4
Лидер

Накладной светильник Lightstar 213924

2360.00 р.

Накладной светильник Lightstar 213926
Накладной светильник Lightstar 213926-foto2
Накладной светильник Lightstar 213926-foto3
Накладной светильник Lightstar 213926-foto4
Лидер

Накладной светильник Lightstar 213926

4104.00 р.

Накладной светильник Lightstar 213927
Накладной светильник Lightstar 213927-foto2
Накладной светильник Lightstar 213927-foto3
Накладной светильник Lightstar 213927-foto4
Лидер

Накладной светильник Lightstar 213927

4119.00 р.

Накладной светильник Lightstar 214406
Накладной светильник Lightstar 214406-foto2
Лидер

Накладной светильник Lightstar 214406

1651.00 р.

Накладной светильник Lightstar 214407
Накладной светильник Lightstar 214407-foto2
Лидер

Накладной светильник Lightstar 214407

1651.00 р.

Накладной светильник Lightstar 214410
Накладной светильник Lightstar 214410-foto2
Накладной светильник Lightstar 214410-foto3
Лидер

Накладной светильник Lightstar 214410

4220.00 р.

Накладной светильник Lightstar 214417
Накладной светильник Lightstar 214417-foto2
Лидер

Накладной светильник Lightstar 214417

2208.00 р.

Накладной светильник Lightstar 214419
Накладной светильник Lightstar 214419-foto2
Накладной светильник Lightstar 214419-foto3
Лидер

Накладной светильник Lightstar 214419

5550.00 р.

Накладной светильник Lightstar 214420
Накладной светильник Lightstar 214420-foto2
Накладной светильник Lightstar 214420-foto3
Лидер

Накладной светильник Lightstar 214420

1130.00 р.

Накладной светильник Lightstar 214427
Накладной светильник Lightstar 214427-foto2
Лидер

Накладной светильник Lightstar 214427

2208.00 р.

Накладной светильник Lightstar 214429
Накладной светильник Lightstar 214429-foto2
Накладной светильник Lightstar 214429-foto3
Лидер

Накладной светильник Lightstar 214429

6080.00 р.

Накладной светильник Lightstar 214430
Накладной светильник Lightstar 214430-foto2
Накладной светильник Lightstar 214430-foto3
Накладной светильник Lightstar 214430-foto4
Лидер

Накладной светильник Lightstar 214430

1097.00 р.

Накладной светильник Lightstar 214431
Накладной светильник Lightstar 214431-foto2
Накладной светильник Lightstar 214431-foto3
Накладной светильник Lightstar 214431-foto4
Накладной светильник Lightstar 214431-foto5
Накладной светильник Lightstar 214431-foto6
Лидер

Накладной светильник Lightstar 214431

1124.00 р.

Накладной светильник Lightstar 214436
Накладной светильник Lightstar 214436-foto2
Накладной светильник Lightstar 214436-foto3
Накладной светильник Lightstar 214436-foto4
Накладной светильник Lightstar 214436-foto5
Накладной светильник Lightstar 214436-foto6
Накладной светильник Lightstar 214436-foto7
Лидер

Накладной светильник Lightstar 214436

790.00 р.

Накладной светильник Lightstar 214437
Накладной светильник Lightstar 214437-foto2
Накладной светильник Lightstar 214437-foto3
Накладной светильник Lightstar 214437-foto4
Накладной светильник Lightstar 214437-foto5
Накладной светильник Lightstar 214437-foto6
Лидер

Накладной светильник Lightstar 214437

790.00 р.

Накладной светильник Lightstar 214438
Накладной светильник Lightstar 214438-foto2
Накладной светильник Lightstar 214438-foto3
Накладной светильник Lightstar 214438-foto4
Лидер

Накладной светильник Lightstar 214438

1155.00 р.

Накладной светильник Lightstar 214439
Накладной светильник Lightstar 214439-foto2
Накладной светильник Lightstar 214439-foto3
Накладной светильник Lightstar 214439-foto4
Накладной светильник Lightstar 214439-foto5
Накладной светильник Lightstar 214439-foto6
Лидер

Накладной светильник Lightstar 214439

875.00 р.

Накладной светильник Lightstar 214440
Лидер

Накладной светильник Lightstar 214440

952.00 р.

Показано с 4357 по 4392 из 5107 (всего 142 страниц)

markerОткрыть карту