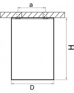
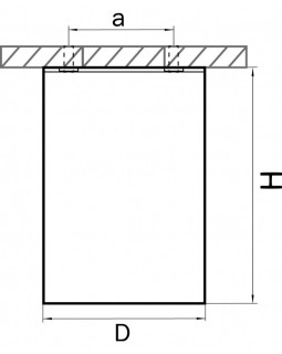
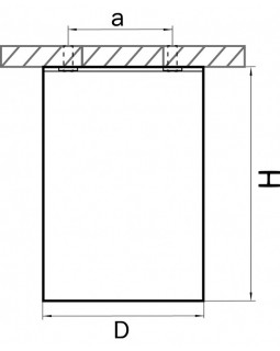
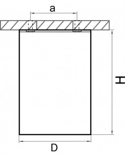
Детские светильники
Лидер
Лидер
Лидер
Лидер
Лидер
Лидер
Лидер
Лидер
Лидер
Лидер
Лидер
Лидер
Лидер
Лидер
Лидер
Лидер
Лидер
Лидер
Лидер
Лидер
Лидер
Лидер
Лидер
Лидер
Лидер
Лидер
Лидер
Лидер
Лидер
Лидер
Лидер
Лидер
Лидер
Лидер
Лидер
Лидер

































































































